Empire Loft 36 Inch Direct Vent Gas Fireplace - DVL36
Empire Loft 36 Inch Direct Vent Gas Fireplace - DVL36
- Regular price
- Price: $2,669.00
- Regular price
- List Price: $2,965.00
- Sale price
- Price: $2,669.00
- Unit price
- / per
You Save:
$296.00 (10%)
Sale
Sold out
UP TO 25% OFF SELECT ITEMS WHILE SUPPLIES LAST: ALL DISCOUNTS ARE APPLIED ON CHECKOUT PAGE | ENDS:
Couldn't load pickup availability

We want to give you and your family the best heating experience possible. You'll find this 36 Inch Loft Direct Vent Gas Fireplace affordable, efficient, and built to last. This family-owned company has been around for nearly 100 years. White Heart Mountain has made it their business to become long-lasting and the same goes for their products. The Loft adds a modern, linear style at an exceptional value to any home or office. The contemporary design is highlighted by a long, flickering flame rising through a bed of crushed glass media.
- Available in Natural Gas or Propane
- Up to 31,000 BTUs
- Includes matte black liner
- Includes clear frost crushed glass media
- Available in Millivolt with On/Off Switch or Intermittent Pilot with On/Off Switch
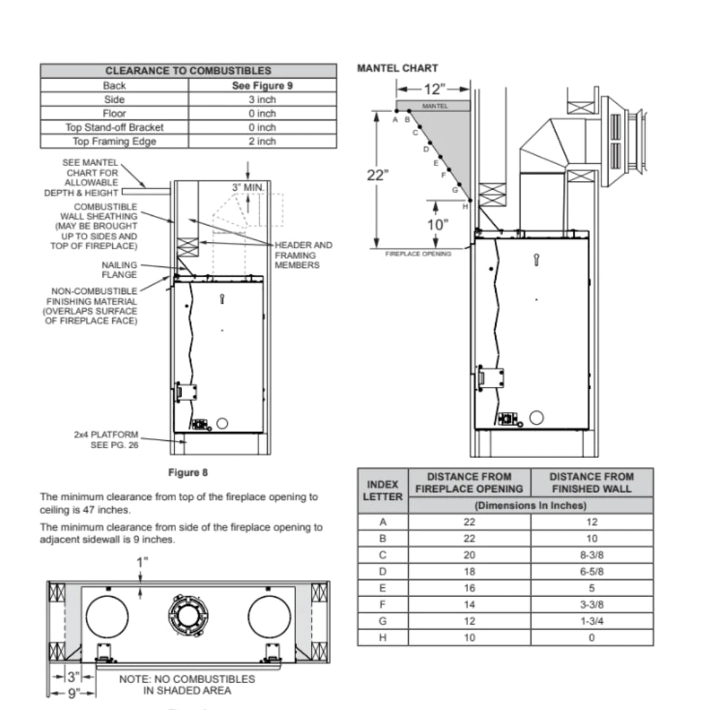
SPECIFICATIONS
Click here for installation manual |
||
Fuel Type: | Gas | |
---|---|---|
Vent Type: | Direct-Vent | |
Ignition Type: | Millivolt or Electronic | |
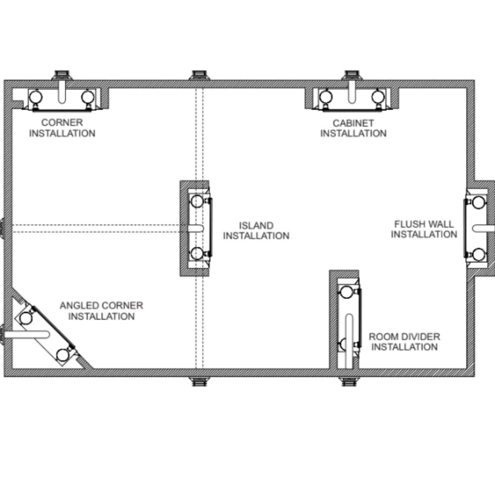
Installation Type: | Zero Clearance | |
Style: | Linear | |
Model: | Natural Gas (NG) | Propane (LP) |
Max. (BTU/HR): | 25,000 BTU's | 25,000 BTU's |
Min. (BTU/HR): | 18,000 BTU's | 20,000 BTU's |
Framing Dimensions |
||
Height | Width | Depth |
---|---|---|
343/4" | 381/4" | 151/2" |



